
Casa
Aizpurua
Luego de una larga búsqueda, conseguimos junto a Edu y Lupe esta casa chorizo en muy mal estado.
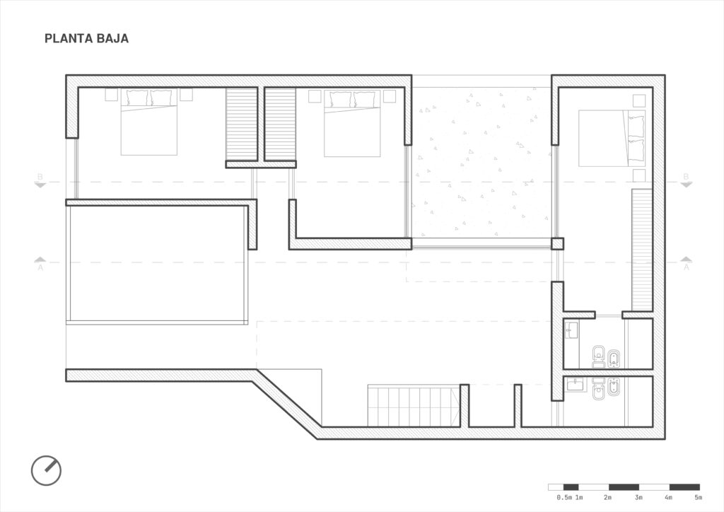
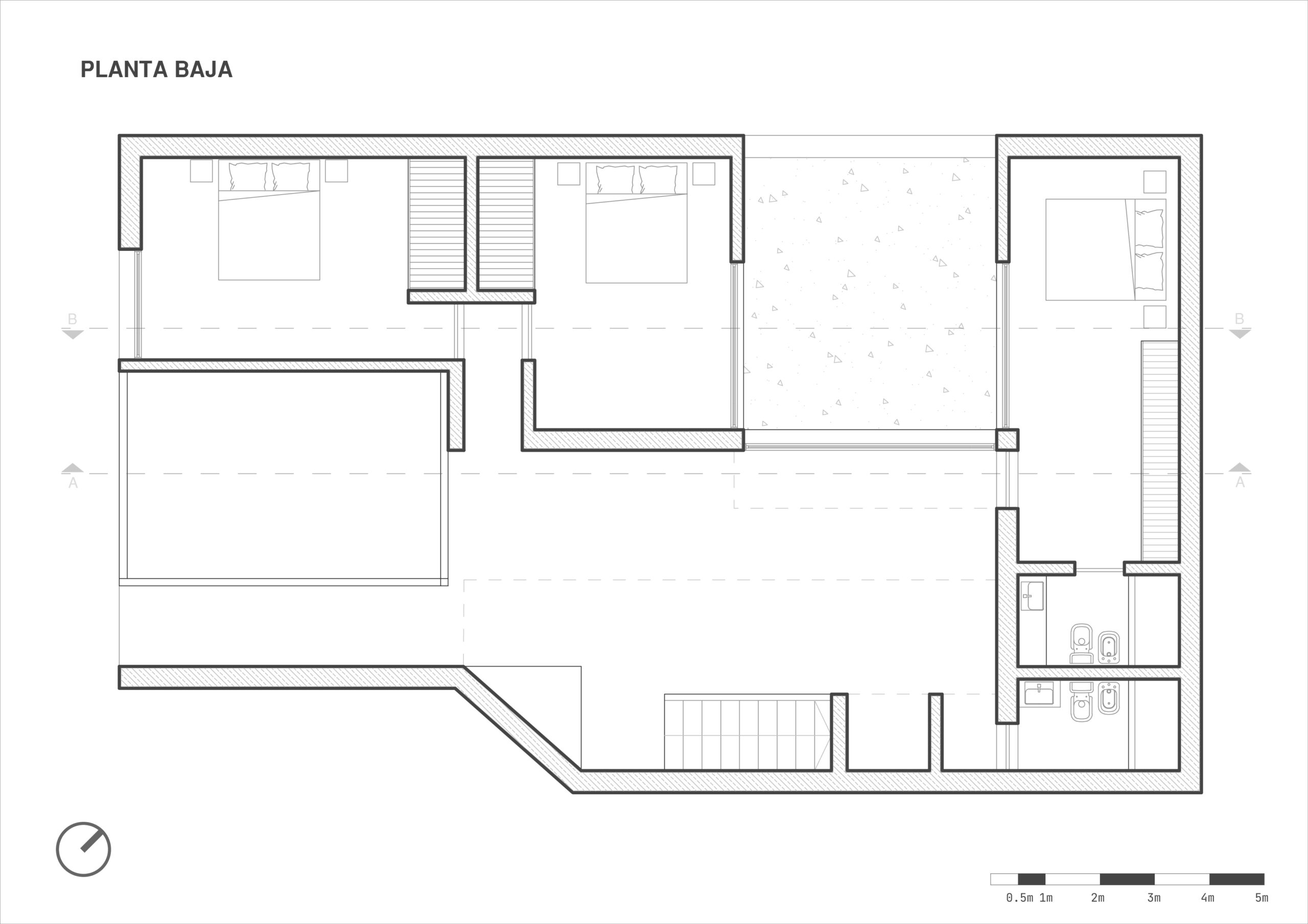
El proyecto consistió en conservar la planta baja y convertirla en la planta privada de dormitorios y espacio de juegos para los chicos y sobre la azotea existente construir una cubierta metálica y así contener un vacío continuo (gran aire y luz) y convertir esa planta alta en el área social que disfruta del sol y las visuales del barrio, este movimiento nos permitió también alejarnos un poco del caos del exterior en PB.
Al ingresar a la casa se percibe la amplitud y la luz que entra por distintos puntos, varios espacios sociales, comenzando por el playroom en PB, se van concatenando para consolidar un espacio amplio de diversas situaciones que favorecen el encuentro y disfrute del área social.
El recorrido de la casa a través del gran vacío está acompañado por las distintas diagonales que definen su morfología - Escalera -Rampa. - Techo inclinado del conjunto.
Casa que cuenta con cochera, 3 dormitorios, patio, playroom, 3 baños, cocina, lavadero, comedor diario, living comedor estar, terraza.
Construyo PHTIPOCASA construcciones
Asociado Nicolás Waldman





















