
PH Pasaje Libertad
Fuimos convocados en esta oportunidad, al barrio de retiro, CABA, con el desafío de transformar una unidad funcional en un nuevo multiespacio.
Nos ubicamos en una preexistencia situada en el corazón de un pasaje característico de buenos aires, y, por ende, acompañada de un estilo muy característico, al cual estamos acostumbrados a respetar.
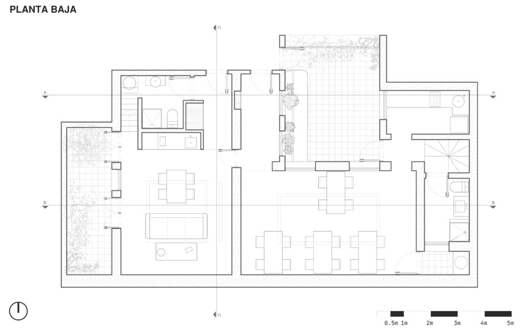
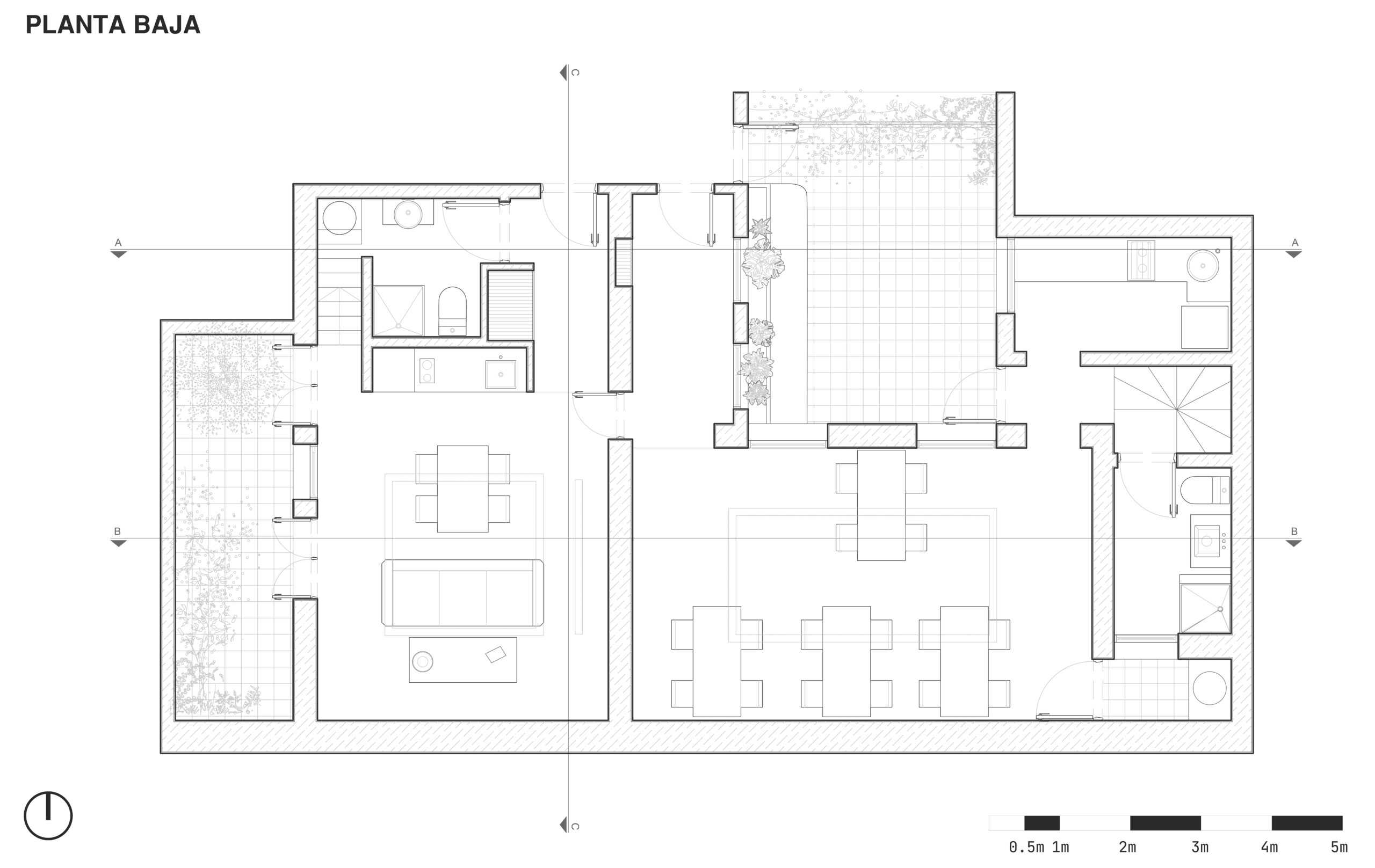
Fue así como proyectamos a priori un primer sector que funcionaría como departamento, con un nuevo núcleo que vincule un baño, cocina, lugar de guardado y situación estilo loft de dormitorio en la parte superior, albergando la mayor cantidad de usos, en un espacio acotado. En el segundo sector, diseñamos un amplio espacio que funcione como coworking.
Vinculamos ambos espacios con un patio interno que oxigene todo el proyecto y permita expandirse al exterior para armar una experiencia de galería de arte, este gesto a la vez, es potenciado con materialidades en el tono del rojo, un solado con damero y un juego morfológico de canteros-asientos que controlen la totalidad de los espacios, fomentando el encuentro social y el espíritu artístico que busca la totalidad del diseño.
A la vez colocamos superficies blancas y lisas, ante eventuales exposiciones.
Como resumen, revitalizamos un espacio en su generalidad, respetando una preexistencia con un fuerte carácter, y fomentando un ámbito artístico y de encuentro social, en relación al ya existente pasaje.
Proyecto realizado junto a @lolacafardo
Construyo Dinamica construcciones






























