
Ph Miró
En esta oportunidad, fuimos convocados por Belén y Tro al barrio de Parque Chacabuco, para reformar su recientemente adquirido PH al fondo.
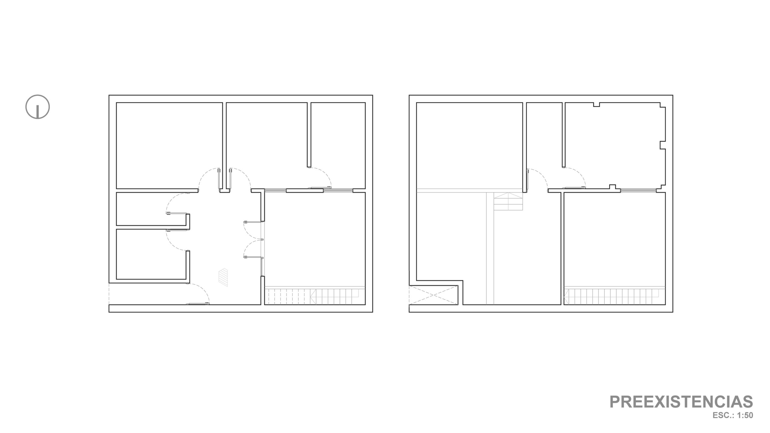
Nos encontramos con un desafío interesante, una edificación existente que necesitaba revalorizar la mayoría de sus espacios, (los cuales contaban ya con una estética interesante y característica) pero a la vez sin ampliar los metros cuadrados existentes.
Comenzamos analizando en profundidad los diferentes ambientes y la manera en la que se conectaban, un exceso de tabiquería en el interior y un patio desaprovechado oscurecían la totalidad, por lo cual el ingreso tanto de luz como de aire, eran las problemáticas principales a resolver.
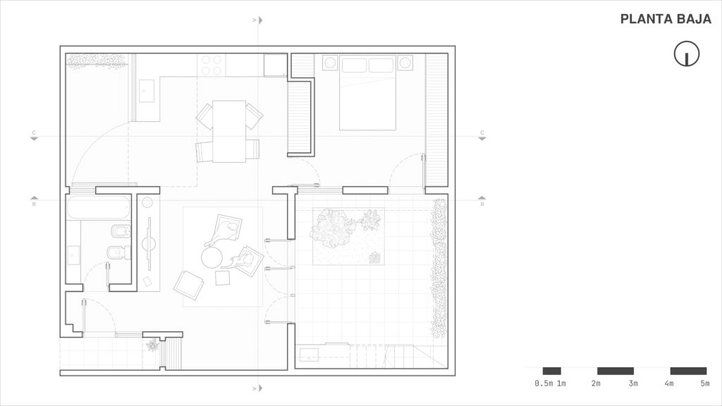
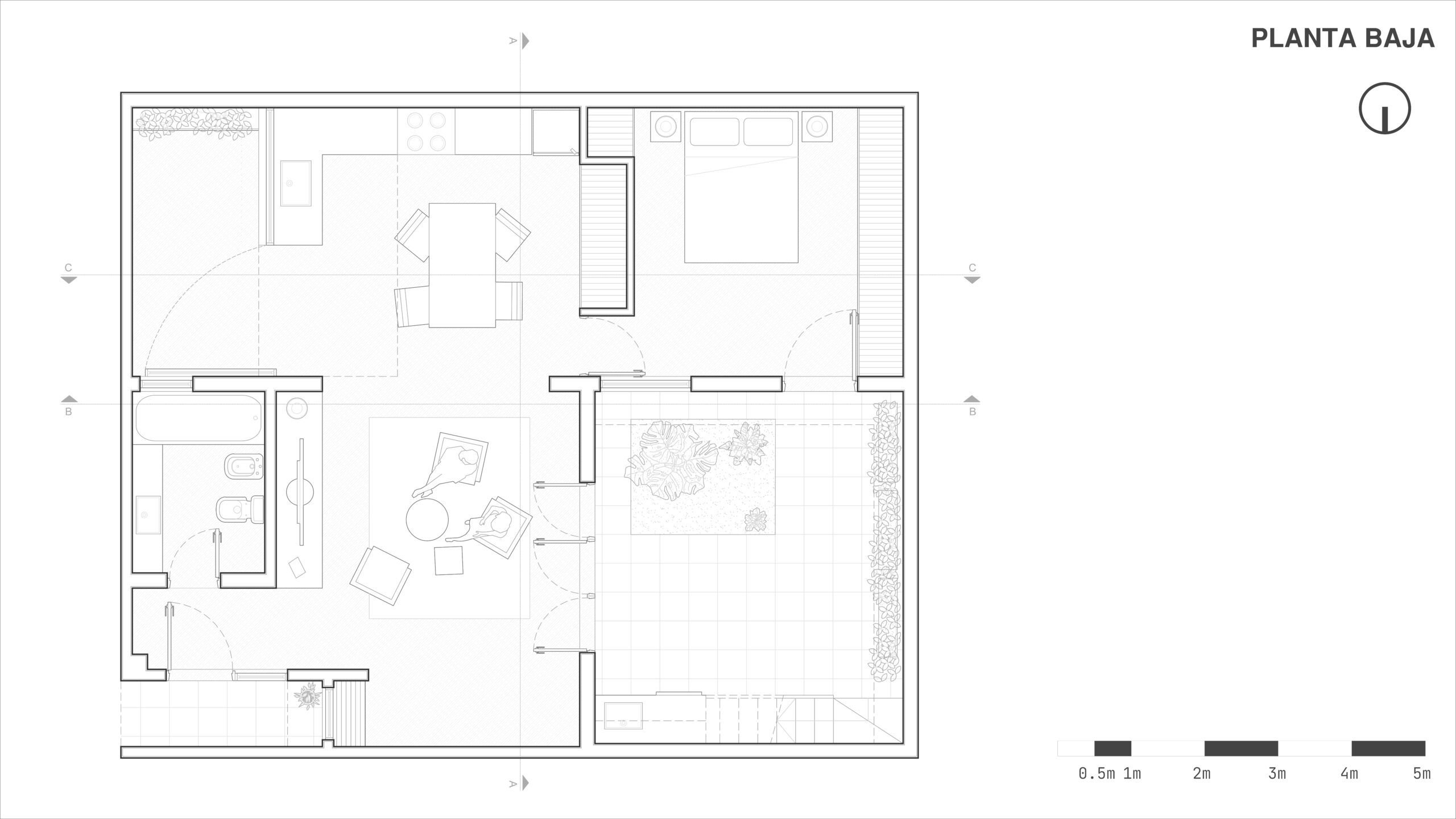
Comenzamos vinculando los interiores de una manera más lógica, integrando el espacio de living comedor a la cocina de forma más funcional, y priorizamos el ingreso de luz mediante dos operaciones de vaciado.
La primera fue horadando la losa existente en el área de la nueva cocina, la cual anexamos a un nuevo patio interno, mejorando las visuales y oxigenando el ambiente en su totalidad.
La segunda operación consistió en retirar un toldo ubicado en el patio principal del PH, lo cual nos permitió potenciarlo y aprovecharlo de una mejor manera, y a la vez ganar el mayor ingreso de luz y aire a la mayoría de la vivienda, ya que como mencionamos al principio, esa fue nuestra premisa principal.
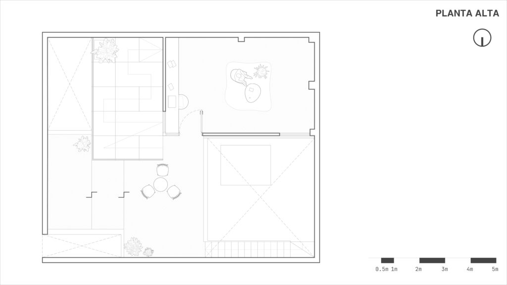
Avanzando hacia otros sectores, nos ubicamos en la terraza, un sector escalonado, recluido y fragmentado, el cual necesitaba ser tratado de tal manera que, de la sensación de un lugar amplio, al aire libre, que invite y fomente el encuentro social de la casa.
Pensamos así, una recomposición de la escalera, rellenando escalones nuevos, y vinculándolos a un gesto de grada que permita un ascenso lúdico, generando un recorrido hacia el último y más alto lugar del PH. Todo esto siendo controlado, mediante una reestructuración de las medianeras, las cuales se van moviendo de manera criteriosa para terminar de recomponer la totalidad del volumen y evitar visuales no deseadas.
Como recapitulación, la casa se encuentra cruzada por dos vacíos que nos garantizan luz y ventilación durante todo el día, rematando en un espacio plástico, intentando una vez mas de conservar la mayoría de lo existente, y fundirlo con nuevas y mejores intervenciones.
.
Construyo: Dinamica construcciones























