
Ph Berlin
Nina nos convocó luego de comprar un PH al fondo en el corazón de Parque Chas (Caba-BsAs-Arg) está unidad pequeña pero con grandes exteriores y llena de sol, nos planteó un lindo desafío, crecer varios m2 sin generar mucha sombra y potenciando ese exterior tan preciado.
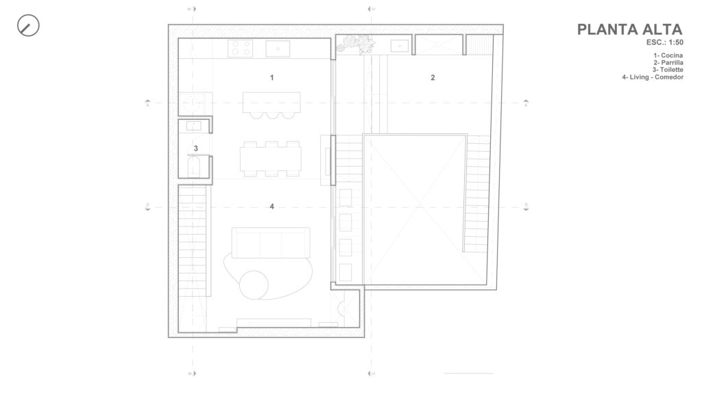
Entonces decidimos colocar el área social en la planta superior, para generar una relación directa con el plano intermedio … vivir entre el cielo y la tierra, entre la terraza y los espacios de dormir .
Conservando mucho de la preexistencia, generamos un proyecto que tiene como centro la circulación y la funcionalidad y predisposición para recibir muchas visitas de manera transitoria o permanente .
Como detalle la escalera metálica que nos lleva hacia la terraza funciona también de parasol junto con las plantas del hermoso pero fuerte sol del Norte.
Construyo Dinamica construcciones






















