
Ph Lisboa
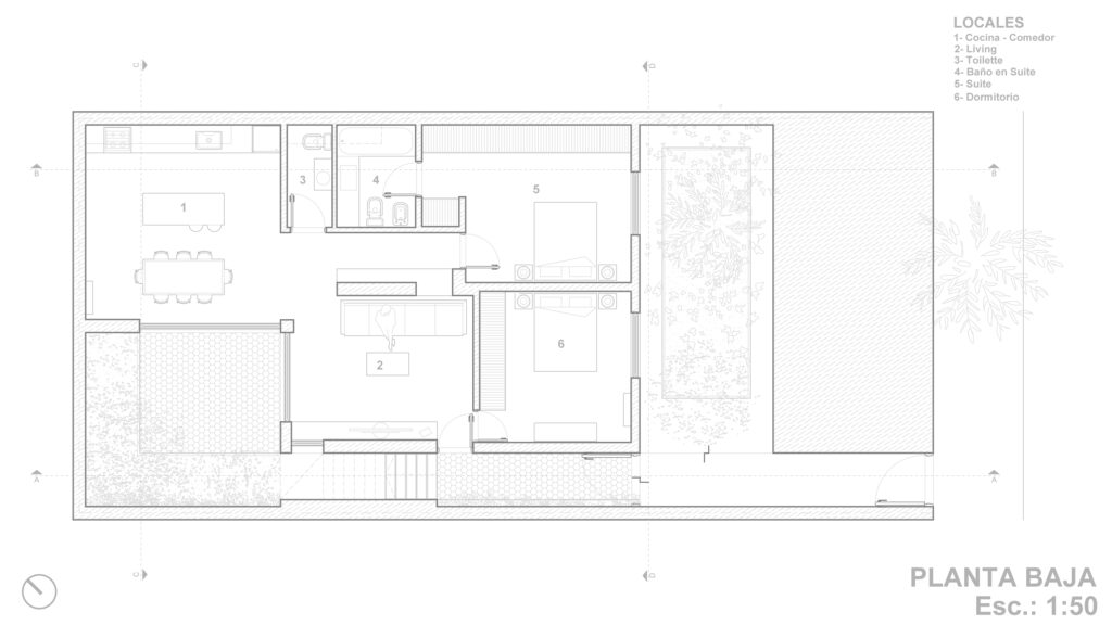
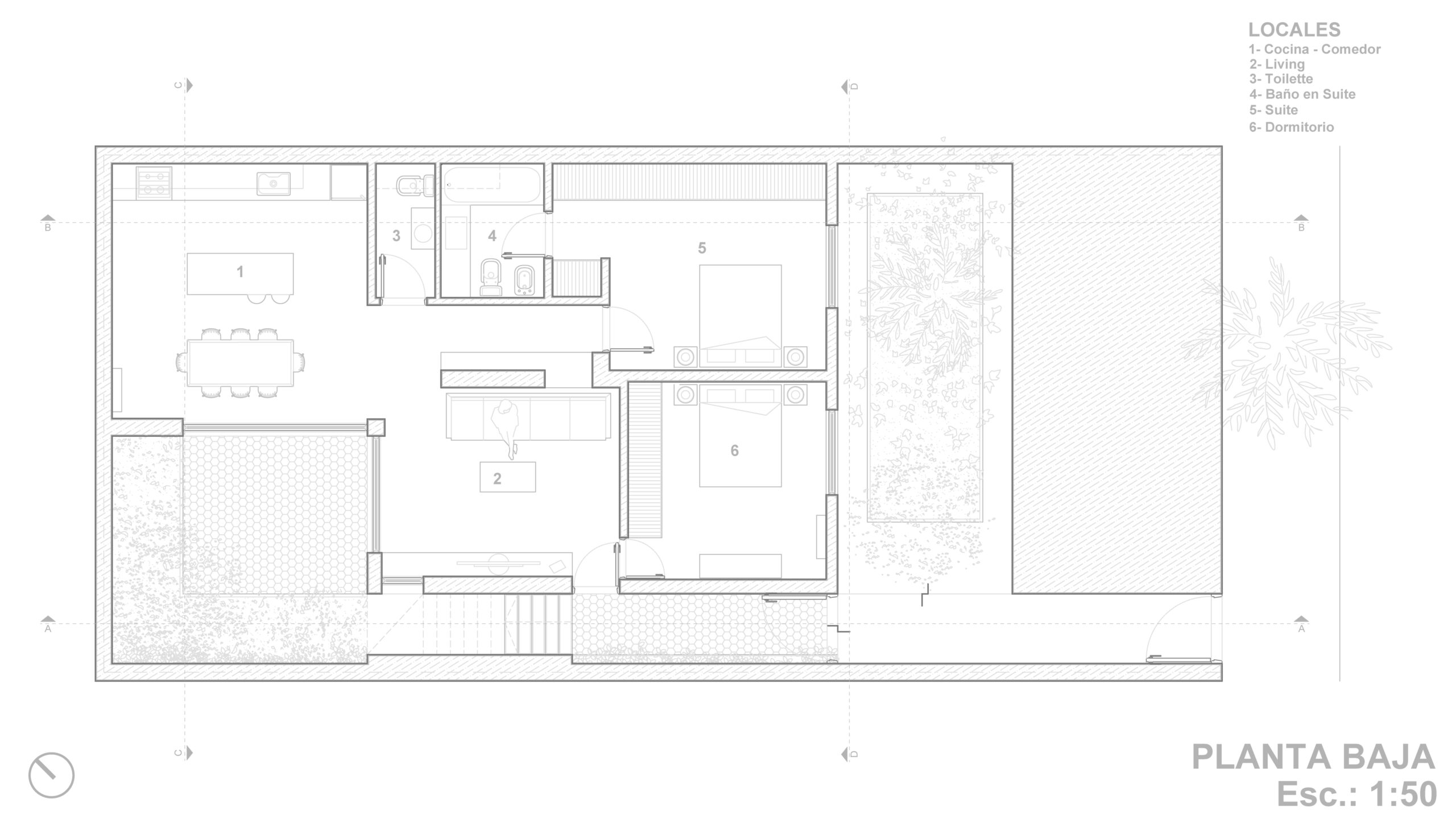
En un PH al fondo, consolidamos la preexistencia, redistribuimos los espacios y construimos un volumen en “L” que nos brinda seguridad, privacidad y nos enmarca el paisaje propio.
El desafío una y otra vez de poner en valor “lo qué hay” y trabajar con los mínimos recursos para lograr los espacios que queremos. Trabajar en PHs es un desafío.
Construyo Dinamica construcciones




































